You can browse Marianna Charitonidou’s design portfolio here
Link to my Brief Design Portfolio

Hotel Complex & Spa by the Sea
Museum of Industrial Design
Stripe House

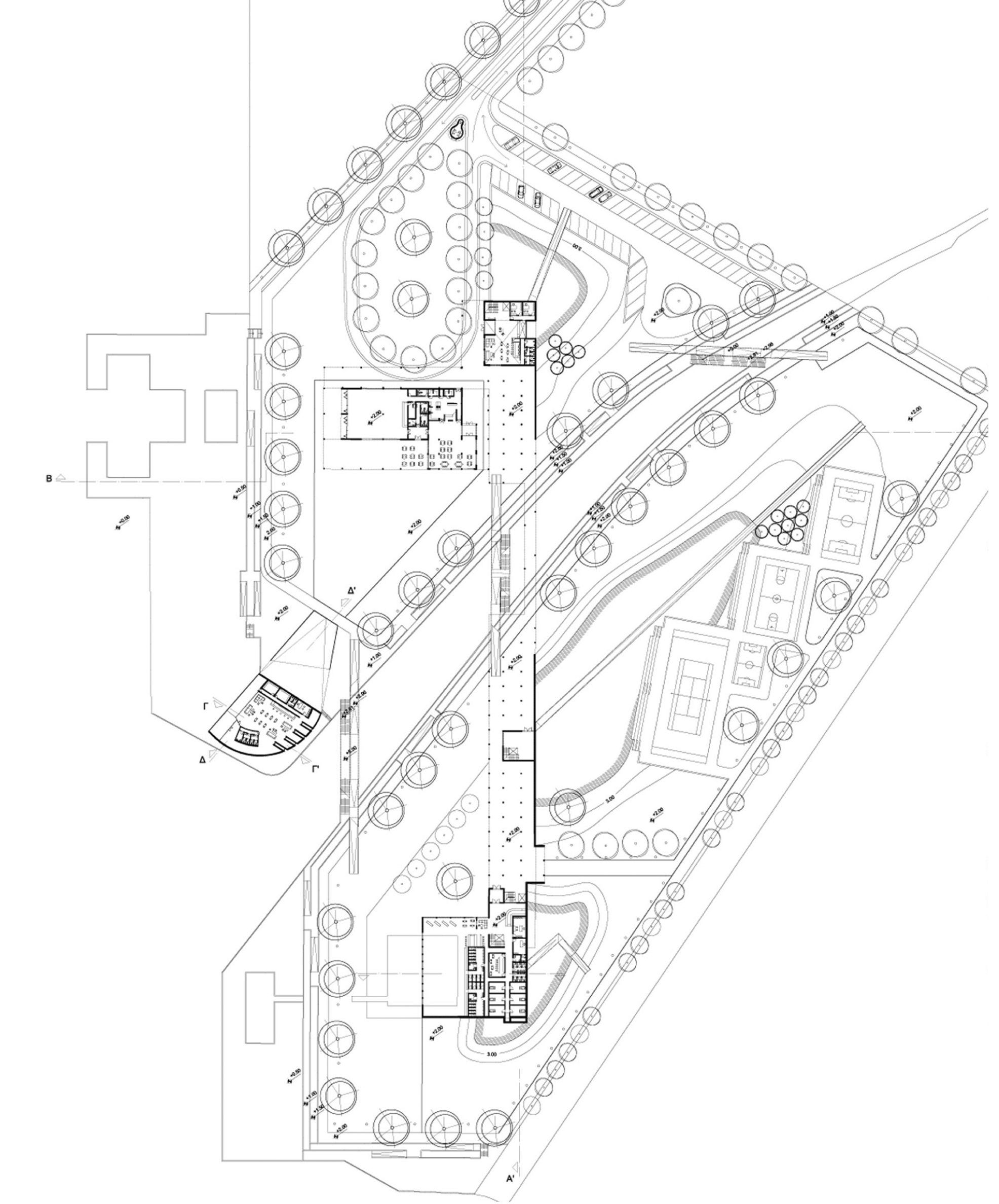
Museum of Industrial Design, Thessaloniki, Greece
As far as my project entitled Design Routes: Crossing the Section is concerned, I have chosen to design a museum of design in a coastal site near the center of Thessaloniki, where a wharf is located. Initially the wharf is connected with a second longer and narrower dock (the “cross dock”) which is situated at an angle to the main dock. The starting point of my design process was this “cross direction” and I attempt to interpret it in a way that will create qualities of design. I choose to conceive this direction as an intersection or a type of “incision” between two types of spaces with different characteristics. I propose the creation of a small hill which functions as a commentary on the fact that in the city of Thessaloniki one grows accustomed to seeing smooth, flat ground, especially near the coastline.
On either side of the “cross direction”, which I emphasize with my design gesture, there are different types of operation (architecture of addition and architecture of removal). In the south-west area of the site I design a slope. With the axis of the narrow and long wharf as an axis of symmetry, I design the mirror of the contour of the slope and in this contour, I design the bands which fold into loops, enveloping the main spaces of the building. The bipolar relationships artificial/natural and architecture of addition/architecture of removal are two further lines of interpretation. The manipulation of surface is related to the formation of enveloping surfaces and to the construction of a connective ground. As far as the faciality is concerned the surface of this project is treated as a multiple face surface. The surface shifts between being parallel and perpendicular to gravitational force. The roof and walls are continuous. The transformations of the surface could be classified in these categories of transformation: rippled, pinched, perforated and bifurcated. The surface is treated as oriented and striated, as a field with a prevailing flow direction. The geometry is continuous, having a continuous variation of the tangent and producing a smooth surface. The project is developed as an extensive mass, well connected to the ground level. The forms are carved out of the terrain. Another characteristic of my final project is the fact that a spiral promenade is designed in order to form the circulation paths, acting as a reference to Guggenheim museum.
At the moment, in Thessaloniki there is a large collection of 2000 pieces of classic objects of 20th-century industrial design, including units that are not currently “hosted” in cultural institutions, and I think it would be crucial to design a museum to adequately exhibit these objects. The site where I propose the creation of this museum is easily accessible from the center of the town and strongly characterized by a close relationship with the sea. The permanent collection covers units such as furniture, light fittings, packaging, domestic appliances, vehicles, jewelry, graphics, clothing and office equipment. These objects illustrate the development of design in connection with new materials, progress in technology, social movements, and growing and varying aesthetic demands. A museum like this certainly retains an incomplete, non finito character.
© Marianna Charitonidou 2018










Η ιδιαιτερότητα της πρότασης έγκειται στο γεγονός ότι ο χώρος έχει σχεδιαστεί έτσι ώστε να πληρεί τις προδιαγραφές ενός σύγχρονου αστικού πάρκου κι ενός σύγχρονου δημόσιου κτηρίου συγχρόνως. Οι δύο αυτές ιδιότητες του χώρου αλληλεπιδρούν ακατάπαυστα μεταξύ τους έτσι ώστε ο σχεδιασμένος χώρος να δίνει τη δυνατότητα στο χρήστη να τον βιώσει όπως αυτός επιθυμεί. Στις σύγχρονες πόλεις έχουμε συνηθίσει να επεμβαίνουμε σε επεμβάσεις τοπιακού χαρακτήρα χωρίς να υπάρχει κάποια ανησυχία και προβληματισμός για τη δημιουργία ενός χώρου που θα έφερε τα χαρακτηριστικά ενός φυσικού τοπίου και θα έδινε την ψευδαίσθηση μιας φυσικής ογκοπλασίας μέσα στον αστικό ιστό. Τα πάρκα, συνηθίζεται, ιδιαίτερα στην Ελλάδα όπου είναι περιορισμένα, να ταυτίζονται με την επέκταση μιας πλατείας, όπου η παρεμβολή του φυσικού στοιχείου και του πρασίνου είναι περιορισμένη. Η δημιουργία ενός λόφου σε εγγύτητα με το θαλάσσιο μέτωπο έτσι ώστε να σηματοδοτεί τη μετάβαση από την πυκνότητα του αστικού ιστού στο φυσικό στοιχείο της θάλασσας παρουσιάζει το εξής ενδιαφέρον:
- Ο λόφος από τη στιγμή που τέμνεται δημιουργώντας τη διαδρομή που καταλήγει στην επιμήκη προβλήτα και διαχωρίζει την επέμβαση στα δύο τμήματα (αυτό που μοιάζει με φυσικό τοπίο και αυτό που φαίνεται ότι είναι τεχνητό) συνδιαλέγεται με το παράδοξο της χωροθέτησής του. Ο επισκέπτης ανάλογα με την οπτική γωνία από την οποία τον αντικρύζει έχει και διαφορετική αίσθηση για αυτό. Όταν δε φαίνεται η τομή μοιάζει με φυσικός, ενώ όταν φαίνεται η τομή αποκαλύπτεται το ότι είναι τεχνητός.
- Αποτελεί ένα σχόλιο για την οριζοντιότητα του τοπίου της Θεσσαλονίκης και τη συνήθεια των ανθρώπων να αντιλαμβάνονται ως πάρκα τη διαμόρφωση του τοπίου σε οριζόντιο κατά κύριο λόγο επίπεδο.
- Απομονώνει την περιοχή της κύριας χρήσης του μουσείου από την οπτική επαφή με τις πολυκατοικίες της πόλης, δημιουργώντας την αίσθηση ότι βρίσκεται σε μια περιοχή με διαφορετικά χαρακτηριστικά από αυτά της πόλης, συμβάλλοντας κατ’ αυτόν τον τρόπο στη συγκέντρωση του επισκέπτη.
Η πρόθεση να λειτουργεί το δημόσιο αυτό κτήριο όλο το εικοσιτετράωρο και έτσι ώστε να ενδυναμώνει τη δημόσια ζωή της πόλης. Η έκτασή του και οι προδιαγραφές των χώρων που το απαρτίζουν υπερβαίνουν τις απαιτήσεις της υπάρχουσας συλλογής του μουσείο Design Θεσσαλονίκης. Αυτό συμβαίνει σκόπιμα για τους εξής λόγους:
- Από τη στιγμή που πρόκειται για ένα έργο αστικής κλίμακας η κατασκευή του έχει βασισθεί εκτός των άλλων και στην πρόβλεψη επέκτασης της συλλογής. Η συλλογή λειτουργεί ως πόλος έλξης, αλλά η λειτουργικότητα του μουσείου δεν περιορίζεται σε αυτήν.
- Όλες οι άλλες συμπληρωματικές χρήσεις, οι χώροι κατανάλωσης, ο πολυλειτουργικός χώρος και το αμφιθέατρο αναφέρονται στην κάλυψη των υπαρχουσών αναγκών της πόλης.
Το κτήριο έχει σχεδιαστεί έτσι ώστε να λειτουργεί ως ένα τοπόσημο της πόλης. Σε αυτήν την κατεύθυνση συμβάλλει σε μεγάλο βαθμό το σημείο χωροθέτησης του, το οποίο έχει επιλεχθεί έτσι ώστε να βρίσκεται σε εγγύτητα με το κέντρο της Θεσσαλονίκης και σε άμεση επαφή με τη θάλασσα. Η ενδυνάμωση της σχέσης δομημένου και θαλάσσιου στοιχείου αποτελεί μία από τις προθέσεις σχεδιασμού και επιτυγχάνεται μέσω διαφόρων εφευρημάτων, κάποια από τα οποία είναι η είσοδος της θάλασσας στις τέσσερις λωρίδες της κατασκευής, ο κατακερματισμός και η διαίρεση της καθεμίας από τις επιμήκεις επιφάνειες σε επιμέρους μακρόστενες υποδιαιρέσεις οι οποίες μεταξύ τους έχουν κάποιο κενό έτσι ώστε να δύναται κανείς να περπατήσει άνετα πάνω σε αυτές και μεταξύ τους ενώ συγχρόνως έχει μια αίσθηση όσο το δυνατόν αμεσότερης επαφής με το νερό. Όπως και η απόφαση να επιλεχθεί ως χαμηλότερη στάθμη δόμησης η στάθμη που ταυτίζεται με την υψηλότερη στάθμη της θάλασσας.
Ο δημόσιος χαρακτήρας του κτηρίου ενδυναμώνεται μέσω των εξής χειρισμών:
- Στη χαμηλότερη στάθμη του κτηριακού συνόλου χωροθετούνται αρκετοί ημιυπαίθριοι χώροι με δημόσιο χαρακτήρα και εύκολα προσβάσιμη από το παραλιακό μέτωπο.
- Τα μαγαζιά, το εστιατόριο και τα δύο αμφιθέατρα είναι δυνατό βάσει της χωροθέτησής τους να χρησιμοποιούνται ανεξάρτητα από τον εκθεσιακό χώρο και να φιλοξενούν διάφορα παράλληλα δρώμενα.
- Η περιήγηση στην έκθεση βιώνεται ως επέκταση του περιπάτου στο θαλάσσιο μέτωπο.

































“Emergent Biotope”
Hotel Complex, Thessaloniki, Greece
One of the purposes of this operation is to embody the building in its landscape and environment. The harmonic relationship between the hotel and the landscape is reached through the creation of three small artificial hills which are situated in the south-east, in such a way that they “embrace” the hotel unit and the spa complex. All the building units – with the exception of the bar which is situated on the seashore, on the “deck”, the “harbor bath” and the restaurant – are sited so as to offer a continuity with the hills.
Another core tenet of this project was the desire to extend the surrounding park onto the water, enhancing the advantages of the seaside environment and of the little river that passes through the site. For this reason, I designed a wooden deck along the seashore, which consists of a 25-metre-wide dock composed of wooden tiers which are accessible by ramps and stairs. These tiers continue along the stream which has been made wider in such a way that it acquires the characteristics of a river that passes through the site.
As far as the design of the buildings is concerned, I emphasized the linearity of the synthesis which becomes significantly tangible through the linear arrangement of the rooms on an axis parallel to that of the coastline. On the ground floor, on the same axis, there is an elongated arcade which leads to the spa complex. At the other end of the arcade are the restaurant and lobby, from which there is external connection with the rooms.
Plans
© Marianna Charitonidou
Northeasthern elevation









Parametric Strategies for the Articulation of an Urban “Process-Plan”, Thessaloniki, Greece
The recent development of advanced computational tools has contributed decisively to the transformation of the strategies employed in order to address the formation of new urban paradigms. In particular, the use of parametric associative design software and scripting techniques has enabled the systematic articulation of complex urban systems, giving rise to innovative projects with inherent design sensibilities and a high degree of sophistication. The parametric approach to design has set an avant-garde research agenda, both in terms of spatial and aesthetic effects. This project aimed to explore parametric strategies in order to articulate an urban process-plan for the city of Thessaloniki. Its main objective was to animate – with the use of various parametric software programs – an alternative form of architecture and urbanism in flux. The workshop was based on the research proposal of the School of Architecture of the Aristotle University of Thessaloniki titled Exploration on the Perspectives of an Environmental Planning Program for the Farm Land of the Aristotle University of Thessaloniki.




Restoration of Arcade (Stoa) Modiano in Thessaloniki
Restaurant & Recreation Area, Thessaloniki, Greece
Museum of Music, Thessaloniki, Greece



Projects for Residential Buildings
Stripe House


In the case of the “stripe house” the surface is manipulated in the following: it is pinched, it has some local deformations but no interruptions of its continuity. As far as the formation of the stairs is concerned, the continuity of the band is locally interrupted but remains continuous at a different angle, in other words it is bifurcated.






Residence for a Family in Amsterdam, Netherlands


Folding House





















